Gia Cố Dầm Đỡ Sàn Lò EAF Tại Thủy Nguyên – Chuyên Gia Xây Dựng Công Nghiệp Tùng Anh

Trong duy trì an toàn công nghiệp, việc nâng cấp và sửa chữa hệ thống dầm chịu lực là nhiệm vụ trọng tâm để đảm bảo tính bền vững cho toàn bộ công trình. Dự án sửa chữa dầm đỡ sàn lò EAF được Xây dựng Tùng Anh triển khai là minh chứng cho quy trình thi công chính xác, an toàn và chuyên nghiệp trong môi trường sản xuất khắc nghiệt.

1. Bối cảnh và thách thức của dự án

Hệ thống kết cấu thép tại mặt bằng COS của dự án cần được can thiệp kỹ thuật khẩn cấp để xử lý các dầm cũ bị xuống cấp do nhiệt độ và tải trọng lớn. Đồng thời, việc bổ sung các nhịp dầm mới là bắt buộc nhằm tăng cường khả năng chịu tải cục bộ cho hệ thống sàn lò EAF. Công tác thi công được thực hiện trực tiếp tại hiện trường với yêu cầu khắt khe về an toàn và tiến độ để không làm gián đoạn sản xuất.

2. Chi tiết các hạng mục thi công kết cấu thép

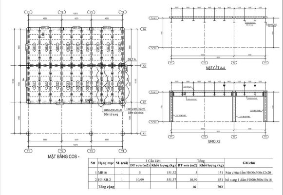
Dựa trên bảng thống kê kỹ thuật, Xây dựng Tùng Anh đã tập trung vào hai nhiệm vụ chiến lược:

A. Sửa chữa dầm thép hiện hữu (Ký hiệu MB16)

  • Loại cấu kiện: Dầm H600x300x12x20.

  • Giải pháp: Xử lý bề mặt, gia cố kết cấu và sơn bảo vệ diện tích 5 $m^2$.

  • Trọng lượng xử lý: 151,32 kg.

B. Lắp đặt bổ sung dầm thép mới (Ký hiệu HP-SB-2)

  • Loại cấu kiện: Dầm H400x300x10x16.

  • Mục tiêu: Tăng cường hệ khung chịu lực chính cho sàn lò.

  • Trọng lượng: 551,37 kg.

  • Diện tích sơn phủ: 10,99 $m^2$ với loại sơn chuyên dụng chống ăn mòn trong môi trường nhiệt độ cao.

Bản vẽ chi tiết triển khai gia cố dầm thép tại hiện trường

3. Hình ảnh thi công thực tế tại Thủy Nguyên

Ghi nhận trực tiếp tại công trường vào ngày 31/12/2025, quy trình lắp dựng được đội ngũ Tùng Anh thực hiện nghiêm ngặt:

  • Biện pháp thi công: Sử dụng hệ thống pa-lăng xích và khung treo chuyên dụng để đưa các cấu kiện dầm thép nặng hơn 550 kg vào vị trí chuẩn xác trong không gian hẹp.

  • Kỹ thuật lắp dựng: Công tác hàn kết nối và lắp ghép được thực hiện trên cao bởi thợ hàn bậc cao, đảm bảo các tiêu chuẩn an toàn lao động tuyệt đối.

  • Hoàn thiện: Các cấu kiện mới được sơn bảo vệ đồng nhất màu xám xanh, đảm bảo tính thẩm mỹ và khả năng chống oxy hóa.

4. Tổng kết khối lượng dự án

Dưới đây là bảng thống kê khối lượng thép đã được xử lý và lắp đặt:

Hạng mục Quy cách Khối lượng (kg)
Dầm sửa chữa MB16 H600x300x12x20 151
Dầm bổ sung HP-SB-2 H400x300x10x16 551
Tổng cộng 702

5. Cam kết chất lượng từ Xây dựng Tùng Anh

Với tổng khối lượng thép xử lý hơn 700 kg và diện tích sơn bảo vệ gần 16 $m^2$, dự án đã hoàn thành đúng tiến độ, đáp ứng 3 tiêu chí cốt lõi:

  1. Chính xác: Đúng quy cách kỹ thuật theo bản vẽ thiết kế đã phê duyệt.

  2. Bền vững: Chất lượng mối hàn ngấu sâu và độ bao phủ của sơn đạt chuẩn công nghiệp.

  3. Linh hoạt: Giải pháp thi công phù hợp với không gian thực tế của nhà máy, giảm thiểu thời gian dừng máy.

XÂY DỰNG TÙNG ANH – CHUYÊN GIA SỬA CHỮA KẾT CẤU THÉP CÔNG NGHIỆP

Quý khách hàng có nhu cầu tư vấn về gia cố dầm thép, sửa chữa nhà xưởng hoặc thi công kết cấu thép tại Hải Phòng, vui lòng liên hệ:

  • Hotline: 0854.127.311

  • Địa chỉ xưởng: Số 5/127 Quán Trữ, Kiến An, Hải Phòng

Để lại một bình luận